三维矢量Shp文件shape属性去掉ZM值
1、打开ArcMap软件,并加载shp矢量文件,然后在所加载shp图层上点击右键,选择Open Attribute Table,打开shp文件的属性表。

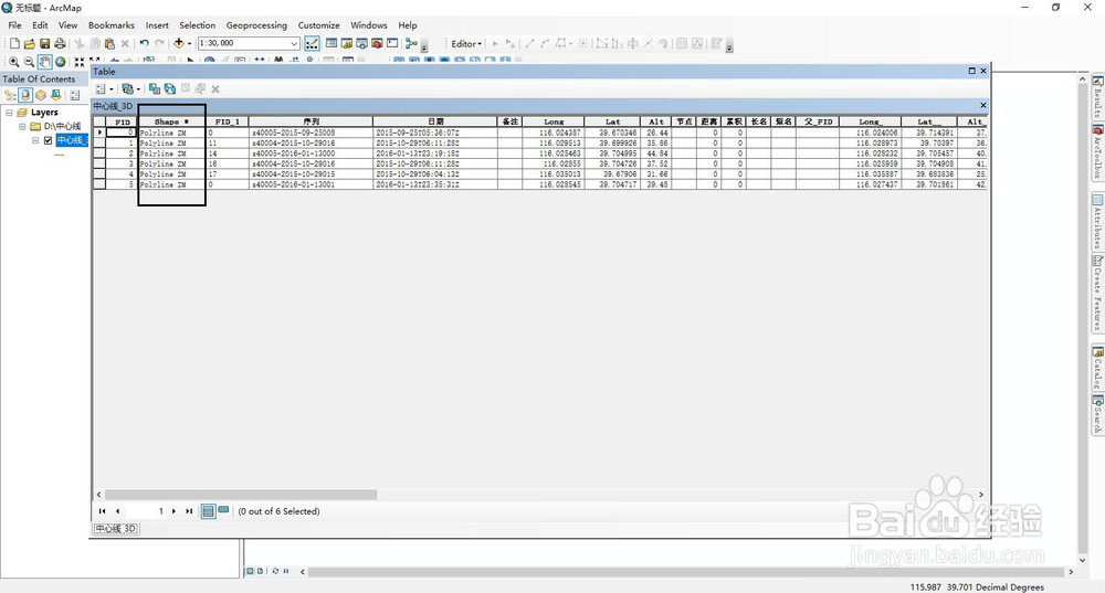
2、查看属性表,发现shape字段属性为Polyline ZM表示为三维矢量线。

3、打开ArcToolbox,选择Conversion Tools->To Shapefile->Feature Class To Shapefile(multiple)工具。

4、在打开对话框中Input Features一栏下拉选择已加载的shp图层,通过Output Folder右侧的文件夹图标选择导出文件夹。(点击右侧的+可以添加多个shp矢量图层一并删除ZM值)

5、点击对话框中右下角的苇质缵爨Environments...按钮,弹出Environment Setting对话框设置环境。将M Values中Output has M Values输入框下拉选择Disable;将Z Values中Output has Z Values输入框下拉选择Disable。点击ok按钮返回至Feature Class To Shapefile(multiple)对话框。

6、点击Feature Class To Shapefile(multiple)对话框中的ok按钮开始处理,会弹出处理进度进度条,处理完成以后对话框会自动关闭。

7、在ArcMap中打开导出文件夹中已处理过的shp文件,可查看shape字段属性变为Polyline,表示已去掉ZM值。
