图在CAD里能看到,但却打印不出来,该怎么办?
1、首先要明确一下,图能看到,打印却看不到,是不是打印机出问题了,如果打印机没有问题,那么接着向下看!

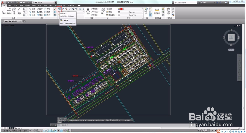
2、我们打开图层管理面板, 在草图与注释界面中的图层管理器位置如下图所示。

3、在经典界面中图层管理器位置如下图所示。

4、打开图层管理器后,我们找到打印一栏。

5、出现打印禁止标识,则打印时不打印该图层,想要打印出现该图层,则点击对应的打印标识即可。

6、应注意defpoints图层,该图层不能被打印且无法设置成打印状态,所以尽量避免使用该图层!
阅读量:167
阅读量:34
阅读量:118
阅读量:122
阅读量:120